LD-FB-1100非標雙節琴臺柜
一、LD-FB-1100型雙節琴臺柜特點
LD-FB-1100型雙節琴臺柜與單節琴臺柜功能及外形相同。面板空間為單節琴臺柜的兩倍,可安裝的控制盤也為單節的兩倍。可根據工程需要靈活配置各種控制盤,還可安裝CRT彩色顯示系統。必要時,可與其它類型琴臺柜組合使用,而且外形美觀,易于操作。琴臺柜底板上開有進線孔,并配有橡膠墊,穿線時將線穿過橡膠墊,以便起到密封、防水、防鼠的作用。
二、LD-FB-1100非標雙節琴臺柜主要技術指標
(1)材料內外表面均進行噴塑處理。
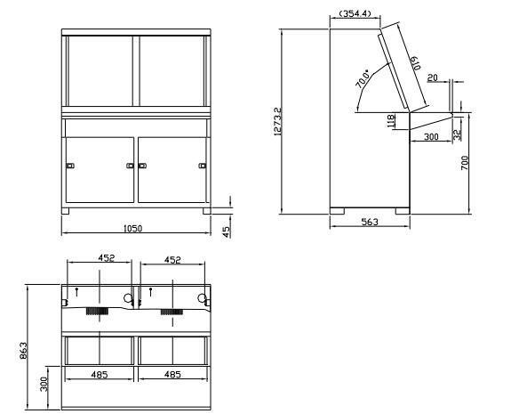
(2)面板尺寸:484mm×534mm(12U)×2,相當于6塊4U標準盤。
(3)外形尺寸:1050mm×863mm(包括臺面)×1273mm。
三、LD-FB-1100非標雙節琴臺柜外形示意圖
LD-FB-1100型雙節琴臺柜外形示意圖如圖

常用配件空間尺寸參見LD-1000A2型立式控制柜的相關內容。
海灣消防公司主營:海灣消防報警系統銷售,消防設備安裝,海灣氣體滅火、海灣電氣火災、消防水噴淋系統施工安裝,售后維修,海灣消防網站:http://www.qdbcsg.com/;海灣消防服務熱線:4006-598-119
本頁關鍵詞:LD-FB-1100非標雙節琴臺柜
上一篇:LD-FB-600非標單節琴臺柜 下一篇:多線輸出板(4點)
產品中心

蘇公網安備32058102002147號