GST-GM9000消防控制室圖形顯示裝置





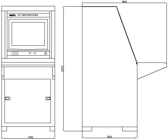
圖1 PC主機安裝在下部結構圖
圖2 內部連接線圖
指示燈說明如下
電源燈:綠色,此燈亮表示圖形顯示裝置裝置土機已丌機。土機關閉后,此燈熄滅。
傳輸燈:綠色,此燈閃亮表示圖形顯示裝置正在與遠程監控中心進行通訊,此燈常亮表示與遠程中心通訊完畢等待確認,確認完畢后,此燈熄滅。
對外接口說明
對外接口說明如圖3所示。

圖3 對外接口說明
控制器RS422接口:連接火災報警控制器(聯動型)的RS422通訊板接口。
火警傳輸網口:連接遠程監控中心控制室主機網口。
2、系統軟件調試
系統硬件安裝完畢后,通電源后進入系統軟件,然后點擊安裝文件“GST-GM9000Vllexe”即可安裝。安裝過程如下:如果此時系統未安裝DotNetFramework20,將出現圖4所示界面,點擊“是”進入圖5所示界面。

圖4
系統提示開始安裝GM9000消防控制室圖形顯示裝置軟件,如圖5所示。

圖5 GM9000消防控制室圖形顯示裝置軟件開始安裝
點擊“下一步”按鈕經過幾步后系統彈出安裝類型選擇窗口,如圖6所示

圖6 安裝類型選擇窗口
用戶可以根據需要進行選擇,選擇“典型”系統默認安裝,點擊“下一步”時系統顯示當前設置信息如圖7所示;選擇“定制”然后點擊“下一步”系統將彈出詢問選擇口的路徑對話框。

圖7 設置信息圖
系統默認安裝到ProgramFiles目錄下的GstSoftware了目錄,用戶可以更改此安裝目錄,如圖7所不。點擊“下一步”系統丌始安裝軟件,如圖8所示。

圖8
系統安裝完成后提示如圖9所示的信息。

圖9
點擊“完成”后,系統將彈出安裝232通訊板USB驅動的對話框,如圖10所示:

圖10
選擇“是”進行安裝,選擇“否”取消安裝,安裝完畢后或選擇“否”后,安裝完畢。
安裝完畢后可以從開始菜單欄執行本軟件,點擊“GM9000消防控制室圖形顯示裝置”里的各項菜單即可,如圖11所示。

圖11
點擊“GM9000圖形顯示裝置客戶端”,系統將彈出客戶端監控軟件,如圖12所示。
圖12
用戶如需卸載應用程序,可以再次運行安裝程序,安裝程序將自動完成卸載操作。如圖13所示。

圖13
選擇“除去”選項,然后點擊“下一步”按鈕,就可以完全卸載上次安裝的應用程序。
軟件使用方法詳見圖形顯示裝置用戶手冊。
智淼君安(江蘇)消防工程技術有限公司http://www.qdbcsg.com/
海灣消防公司主營:海灣消防報警系統銷售,消防設備安裝,海灣氣體滅火、海灣電氣火災、消防水噴淋系統施工安裝,售后維修,海灣消防網站:http://www.qdbcsg.com/;海灣消防服務熱線:4006-598-119
本頁關鍵詞:GST-GM9000消防控制室圖形顯示裝置
上一篇:INET-GSTN654圖形顯示裝置接口卡 下一篇:海灣GST-QT-GM9200消防控制室圖形顯示裝置(非觸摸屏)




蘇公網安備32058102002147號